[전산응용건축제도기능사 실기] Chapter. 05 – 문상세도 / 걸래받이 (오토캐드 강좌)
문 상세도: 문의 세밀한 설계를 위한 완벽한 가이드
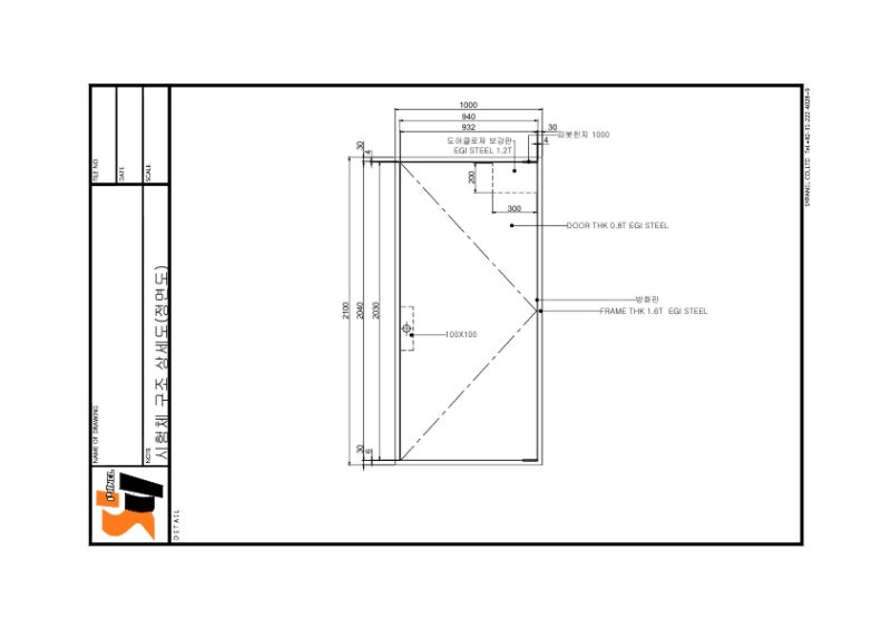
1. 문 상세도란 무엇인가요?
문 상세도는 문의 설계와 제작에 필요한 모든 세부 사항을 포함한 도면이며, 문의 외관, 크기, 재료, 부속품, 조립 방법 등을 상세하게 기록한 문서입니다. 주로 건축 분야에서 사용되며, 슬라이딩 도어 DWG, 캐드 미닫이문 소스, 목문 상세 도, 자동문 상세도 DWG, 슬라이딩 도어 평면도 DWG, 미닫이문 캐드, 미서기문 캐드 소스, 슬라이딩도어 디테일문 상세도 등과 같은 다양한 종류의 문에 대한 정보를 담고 있습니다.
2. 문 상세도의 목적과 중요성
문 상세도는 다양한 목적과 중요성을 가지고 있습니다. 그 중에서도 가장 중요한 목적은 문의 정확한 제작과 설치를 위함입니다. 문 상세도를 기반으로 제작된 문은 설계와 도면에 따라 정확한 사이즈로 제작되어 완벽한 조립이 가능하며, 이는 건축물의 안정성과 외관을 보장합니다.
또한, 문 상세도는 건축 현장에서의 작업 절차를 명확히 하고, 시공 단계에서의 문제를 미리 파악하여 수정할 수 있도록 도와줍니다. 더불어, 재료와 비용의 효율적인 관리를 가능하게 하며, 디자인 요소와 기능성을 고려하여 최적의 문을 제작할 수 있도록 돕습니다.
3. 문 상세도 작성을 위한 기본 지침
문 상세도를 작성하기 위해서는 다음과 같은 기본 지침을 따라야 합니다:
가. 정확한 측정: 문의 크기와 치수를 정확하게 측정하여 기재해야 합니다.
나. 재료와 부속품 선택: 문의 재료와 부속품을 환경과 용도에 맞게 선택하고, 그에 따른 세부 내용을 명시해야 합니다.
다. 기술적 상세 설명: 문의 개폐 방식, 조립 방법, 부속품의 조합 등 기술적인 상세 내용을 구체적으로 기재해야 합니다.
라. 스케일과 비례: 문 상세도는 스케일과 비례를 지켜서 작성해야 하며, 정확한 크기를 확인할 수 있도록 해야 합니다.
4. 문 상세도 작성 절차
문 상세도를 작성하기 위해서는 다음과 같은 절차를 따를 수 있습니다:
가. 문의 유형과 목적 파악: 문의 종류(슬라이딩 도어, 미닫이문 등)와 사용 목적(실내용, 외부용 등)을 파악하여 작성할 문의 세부 사항을 결정합니다.
나. 필요한 정보 수집: 문의 크기, 재료, 부속품, 디자인 등에 대한 정보를 수집합니다.
다. 문 상세도 작성: 수집한 정보를 바탕으로 문 상세도를 작성합니다. 적절한 그림 도구나 CAD 소프트웨어를 활용하여 상세한 도면을 그립니다.
라. 검토 및 수정: 작성한 문 상세도를 다른 전문가들과 검토하여 필요에 따라 수정합니다.
5. 문 상세도에 포함되어야 할 내용
문 상세도에는 다음과 같은 내용이 포함되어야 합니다:
가. 문의 크기와 치수: 높이, 너비, 두께 등의 치수 정보를 포함해야 합니다.
나. 재료와 부속품: 문의 재료와 부속품의 종류와 사양을 명시해야 합니다.
다. 기술적 상세 내용: 문의 개폐 방식, 잠금 방법, 조립 방법 등 기술적인 세부 사항을 기재해야 합니다.
라. 디자인과 외관: 문의 디자인과 외관 특징을 설명하는 그림이나 설명을 포함해야 합니다.
6. 문 상세도 작성 시 고려해야 할 사항
문 상세도를 작성할 때 다음과 같은 사항을 고려해야 합니다:
가. 기능성: 문의 기본적인 기능을 충족하고, 사용자의 편의성을 고려해야 합니다.
나. 환경과 내구성: 문이 설치될 환경을 고려하여 적절한 재료를 선택해야 하며, 내구성을 고려하여 오랜 시간 사용 가능한 제품이어야 합니다.
다. 안전성: 문의 개폐 시 안전에 문제가 없도록 구조와 잠금 메커니
사용자가 검색한 키워드: 문 상세도 슬라이딩 도어 DWG, 캐드 미닫이문 소스, 목문 상세 도, 자동문 상세도 DWG, 슬라이딩 도어 평면도 DWG, 미닫이문 캐드, 미서기문 캐드 소스, 슬라이딩도어 디테일
주제와 관련된 이미지 문 상세도
![[전산응용건축제도기능사 실기] CHAPTER. 05 - 문상세도 / 걸래받이 (오토캐드 강좌) [전산응용건축제도기능사 실기] CHAPTER. 05 - 문상세도 / 걸래받이 (오토캐드 강좌)](https://cacanh24.com/wp-content/uploads/2023/07/hqdefault-350.jpg)
Categories: Top 62 문 상세도
여기에서 자세히 보기: cacanh24.com
슬라이딩 도어 Dwg
슬라이딩 도어 DWG: 디테일한 정보와 개념적 설명을 제공하는 포괄적인 가이드
[인트로]안녕하세요! 오늘은 슬라이딩 도어 DWG에 대해 깊이 있는 정보를 제공하는 기사를 쓰려고 합니다. 슬라이딩 도어 DWG는 건축 및 설계 분야에서 매우 중요한 역할을 합니다. 이 기사를 통해 슬라이딩 도어 DWG의 개념, 원리, 활용 방법 등을 자세히 알아보도록 하겠습니다. 구글 검색 랭킹을 높이기 위해 더욱 정확하고 체계적으로 정보를 제공할 것입니다.
[본문]-
슬라이딩 도어 DWG란 무엇인가요?
슬라이딩 도어 DWG는 CAD 소프트웨어에서 사용되는 파일 형식 중 하나입니다. DWG는 “Drawing”의 약자로, AutoCAD 소프트웨어에서 자주 사용되는 파일 형식입니다. 슬라이딩 도어 DWG 파일은 건축 및 설계 분야에서 사용되며, 슬라이딩 도어의 디자인과 관련된 정보를 담고 있습니다. 이러한 파일 형식은 2D 및 3D 도면을 지원하며, 다양한 슬라이딩 도어의 크기, 모양, 재질 등을 정확히 표현할 수 있습니다. -
슬라이딩 도어 DWG의 활용 방법은 무엇이 있나요?
슬라이딩 도어 DWG 파일은 건축 및 인테리어 디자인 분야에서 널리 활용됩니다. 주택, 상업 시설, 공공 건물 등 다양한 곳에서 슬라이딩 도어를 설계하고 구현할 때 DWG 파일이 사용됩니다. 이 파일 형식은 슬라이딩 도어의 설치 위치, 크기, 개폐 방식, 재질 등을 정확히 기록하여 프로젝트를 효율적으로 관리할 수 있게 해줍니다. -
슬라이딩 도어 DWG 파일의 특징은 무엇인가요?
슬라이딩 도어 DWG 파일은 다른 파일 형식에 비해 다음과 같은 특징을 가지고 있습니다.
- 정확한 측정: DWG 파일은 공간의 크기와 비율을 정확하게 표현할 수 있어 설계의 정확성을 높입니다.
- 레이어 기능: DWG 파일은 레이어 기능을 지원하여 여러 요소들을 각각의 레이어로 구분하여 관리할 수 있습니다.
- 수정 용이성: 슬라이딩 도어 DWG 파일은 수정이 용이하여 변화에 빠르게 대응할 수 있습니다.
- 벡터 형식: DWG 파일은 벡터 형식으로 저장되기 때문에 확대 또는 축소해도 이미지의 품질이 손상되지 않습니다.
-
슬라이딩 도어 DWG 파일을 사용하는 주요 분야는 어떤 것들이 있나요?
슬라이딩 도어 DWG 파일은 건축, 인테리어 디자인, 시설 관리 등 다양한 분야에서 사용됩니다. 주택 및 상업용 건물의 건축 설계 단계에서부터 인테리어 디자인에 이르기까지 DWG 파일은 전반적인 프로젝트에 걸쳐 중요한 역할을 수행합니다. 또한, 공공 시설이나 병원과 같은 장소에서 슬라이딩 도어의 안전성을 고려한 설계에도 DWG 파일이 사용됩니다. -
슬라이딩 도어 DWG 파일을 작성하는 방법은 어떤 것이 있나요?
슬라이딩 도어 DWG 파일을 작성하는 방법은 주로 CAD 소프트웨어를 사용하여 이루어집니다. AutoCAD와 같은 프로그램을 이용하여 2D 또는 3D 도면을 그린 후 DWG 파일 형식으로 저장합니다. 도면을 작성할 때에는 정확한 치수를 측정하고, 레이어를 구분하여 요소들을 체계적으로 관리하는 것이 중요합니다.
Q1. 슬라이딩 도어 DWG 파일은 어떤 확장자를 가지고 있나요?
A1. 슬라이딩 도어 DWG 파일은 “.dwg”라는 확장자를 가지고 있습니다. 이 확장자는 AutoCAD 소프트웨어에서 기본적으로 사용되는 파일 형식입니다.
Q2. 슬라이딩 도어 DWG 파일은 어떤 용도로 사용되나요?
A2. 슬라이딩 도어 DWG 파일은 주로 건축 및 인테리어 디자인 분야에서 사용됩니다. 건물의 구조와 인테리어 요소를 정확하게 표현하여 설계 및 시공 단계에서 활용됩니다.
Q3. 슬라이딩 도어 DWG 파일은 수정이 가능한가요?
A3. 네
캐드 미닫이문 소스
캐드 미닫이문 소스: 자세한 가이드와 정보
소개
캐드 미닫이문 소스는 현대 건축에서 많이 사용되는 중요한 기술 중 하나입니다. 캐드 미닫이문은 전통적인 문과 달리 자동으로 열리고 닫히는 문으로, 자동 문 시스템을 구현하기 위해 필요한 핵심적인 부품입니다. 이 기술은 건물의 편리성, 효율성, 그리고 안전성을 증진시키며 현대 건축 디자인에 필수적인 역할을 하고 있습니다.
캐드 미닫이문 소스의 작동 원리
캐드 미닫이문 소스는 일반적으로 두 가지 주요 구성 요소로 구성됩니다. 첫 번째로, 센서와 제어 장치로 구성된 시스템이 있으며, 두 번째로, 이를 기반으로 작동하는 실제 문 구조물이 있습니다.
-
센서와 제어 장치: 캐드 미닫이문은 주로 다양한 센서를 사용하여 주변 환경을 감지합니다. 주로 사용되는 센서에는 근접 센서, 적외선 센서, 레이더 센서, 무선 원격 제어 등이 있습니다. 이러한 센서들은 사람이나 물체의 접근을 감지하고, 문이 자동으로 열리거나 닫히도록 신호를 보냅니다. 이러한 센서와 연결된 제어 장치는 센서의 신호를 분석하여 문의 작동을 조절합니다.
-
문 구조물: 실제 문 구조물은 센서와 제어 장치로부터 전달받은 신호에 따라 작동합니다. 캐드 미닫이문은 슬라이딩 문, 폴딩 문, 회전 문 등 다양한 종류가 있으며, 건물의 크기와 용도에 따라 다양한 형태로 설치될 수 있습니다. 이러한 문 구조물은 안전 기능과 함께 자동으로 열리고 닫히므로 편리성과 안전성을 동시에 보장합니다.
캐드 미닫이문 소스의 적용 분야
캐드 미닫이문 소스는 다양한 분야에서 널리 사용되고 있습니다. 주로 상업용 건물, 병원, 호텔, 쇼핑몰, 지하철 역 등 대규모 건물에서 많이 적용됩니다. 이러한 장소에서는 사람들의 이동이 많고 자동 문이 필요한 상황이 많아서 캐드 미닫이문이 효율적으로 활용됩니다.
-
접근 편의성: 캐드 미닫이문은 자동으로 작동하기 때문에 사용자들이 문을 여는 데 노력을 들이지 않아도 됩니다. 특히 무거운 물건을 들고 이동해야 하는 경우에도 자동 문이 있으면 훨씬 편리하게 이동할 수 있습니다.
-
장애인 접근성: 장애를 가진 사람들은 문을 열기 어렵기 때문에 캐드 미닫이문이 필수적입니다. 적절한 센서와 제어 장치를 사용하여 장애인들의 접근성을 높일 수 있습니다.
-
안전성 강화: 캐드 미닫이문은 센서를 통해 주변 상황을 감지하고, 사람이나 물체와의 충돌을 방지하는 안전 기능을 갖추고 있습니다. 이로 인해 사고를 예방하고 건물 내부의 안전성을 강화할 수 있습니다.
캐드 미닫이문 소스의 유지 및 보수
캐드 미닫이문 소스는 정기적인 유지 및 보수가 필요합니다. 이는 시스템이 원활하게 작동하고 안전하게 사용될 수 있도록 하는데 중요합니다.
-
주기적인 점검: 캐드 미닫이문의 센서, 제어 장치, 그리고 실제 문 구조물을 주기적으로 점검해야 합니다. 센서의 정확성과 작동 여부, 제어 장치의 손상 여부, 그리고 문의 움직임이 원활한지 등을 확인하여 문제를 발견하고 조치할 수 있습니다.
-
청소 및 윤활: 문 구조물과 관련된 부품들은 오랜 사용으로 인해 먼지나 오염물질이 쌓일 수 있습니다. 정기적으로 청소를 하고, 필요한 경우 윤활 작업을 수행하여 부드럽게 작동하도록 유지합니다.
-
고장 대비 및 수리: 문제가 발생했을 때 신속하게 대처하고, 필요한 경우 전문가의 도움
수집 37 문 상세도.









![전산응용건축제도기능사_실기] 013-현관문 방문 입면 단면 상세도-01 - YouTube 전산응용건축제도기능사_실기] 013-현관문 방문 입면 단면 상세도-01 - Youtube](https://i.ytimg.com/vi/8nGbTjLQV64/hq720.jpg?sqp=-oaymwEhCK4FEIIDSFryq4qpAxMIARUAAAAAGAElAADIQj0AgKJD&rs=AOn4CLBCqAWM3ROYqSTlYc0JvO9AYiK7jg)






![전산응용건축제도기능사_실기] 013-현관문 방문 입면 단면 상세도-03 - YouTube 전산응용건축제도기능사_실기] 013-현관문 방문 입면 단면 상세도-03 - Youtube](https://i.ytimg.com/vi/hoSr4KCQPkM/maxresdefault.jpg)

![전산응용건축제도기능사_실기] 013-현관문 방문 입면 단면 상세도-01 - YouTube 문서광장 > 리포트 > 디자인소스” style=”width:100%” title=”문서광장 > 리포트 > 디자인소스”><figcaption>문서광장 > 리포트 > 디자인소스</figcaption></figure>
<figure><img decoding=](https://image4.happycampus.com/Production/thumb212/2015/07/13/data13419847-0001.jpg)


Article link: 문 상세도.
주제에 대해 자세히 알아보기 문 상세도.
- 22개의 문 평면도 아이디어 | 평면도, 문, 작은 집
- 방열문 및 기타제품 시방서 – 오토캐드 도면(dwg) – (주)삼성판넬 …
- 인테리어 도면-도어 상세도1 레포트 – 해피캠퍼스
더보기: cacanh24.com/category/innovative-cities
